Обяви За нас Контакти
Продава 3-СТАЕН
град Благоевград, Широк център
118 400 €
231 570.27 лв.

(1 150 €, 2 249.20 лв./m2)
Не се начислява ДДС
История на цената
Публикувана в 17:38 на 3 февруари, 2026 год.
Обявата е посетена 77 пъти.
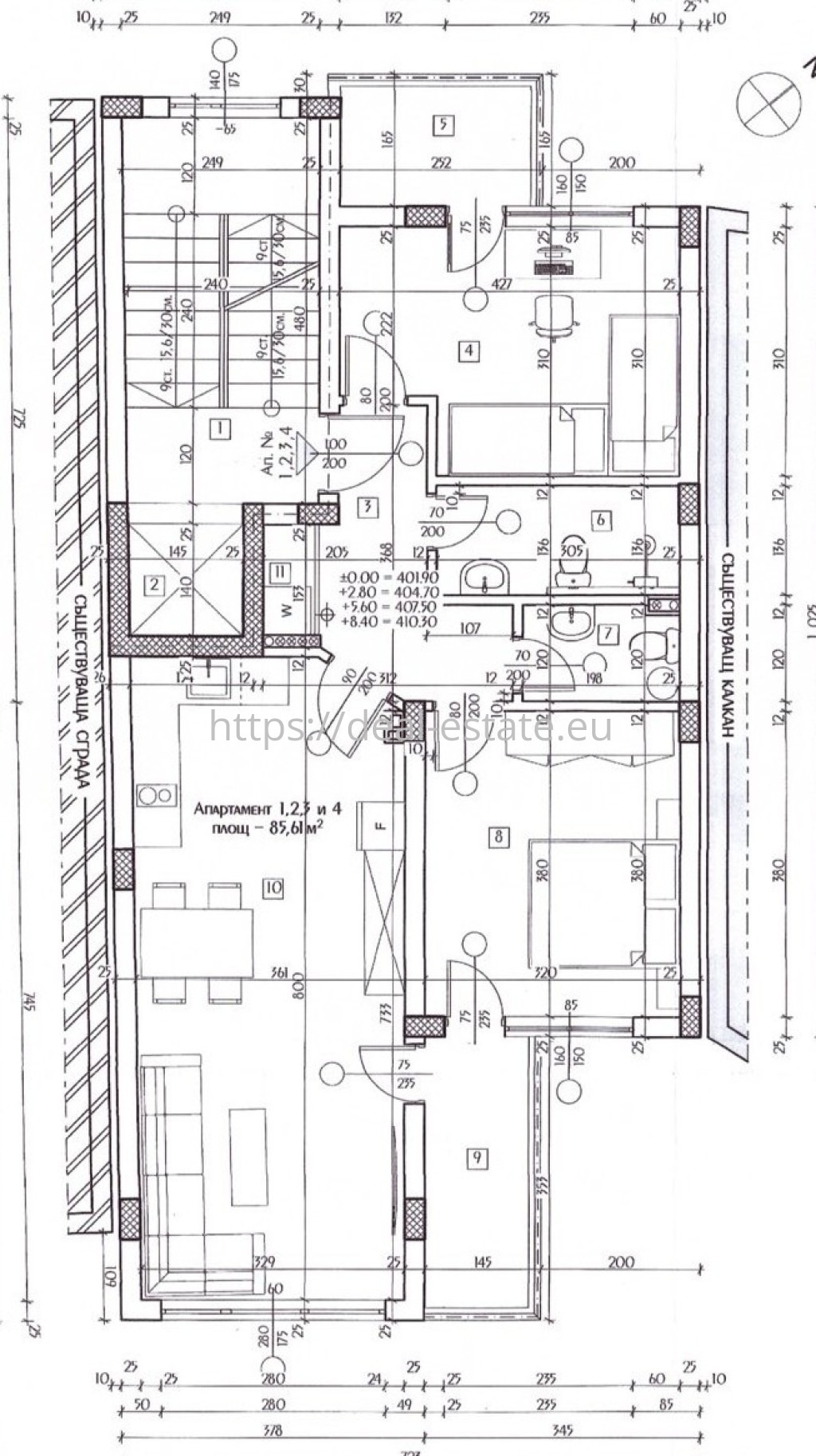
Площ:
103 m2
Строителство:
Тухла, Ще бъде въведен в експлоатация 2026 г.

Описание на имота:


Предлагаме за продажба тристаен апартамент с площ 103 кв.м в модерна, новострояща се сграда /със само един апартамент на етаж /в широк център на гр. Благоевград.
Разпределение:
Всекидневна с кухненски бокс;
Две спални;
Коридор;
Два санитарни възела с баня;
Две тераси ;
Килер;
Мазе;
Степента на завършеност, която се предлага в тази цена е:
Под циментова замазка;
Стени и тавани гипсова мазилка;
Монтирана входна врата;
PVC дограма с двоен стъклопакет;
ВиК инсталация до тапа;
Електроинсталация до точка;
Сградата е в процес на строителство, с планиран срок за завършване края на 2026 г.
Свободни апартаменти на етаж 3-ти и 4-ти.
Обява 1358.
Особености
Тухла
Асансьор
Контрол на достъпа
За контакт:
0877116911
Агенция:
ДИЪЛ ЕСТЕЙТ
00359877116911
ДИЪЛ ЕСТЕЙТ logo
В imot.bg от 2024 г.
deal-estate.imot.bg
Адрес:
област Благоевград, гр. Благоевград, гр, Благоевград, ул. Васил Мечкуевски 20
http://deal-estate.eu
ИЗПРАТИ ЗАПИТВАНЕ
ИЗПРАТИ ЗАПИТВАНЕТО

Продава 3-СТАЕН
град Благоевград, Широк център
Обява: 1c177013308566276

118 400 €
231 570.27 лв.
История на цената
(1 150 €, 2 249.20 лв./m2)

Не се начислява ДДС
ЗАПАЗИ ОБЯВАТА

Местоположение: град Благоевград, Широк център

Допълнителни данни за имотите в района и сравнение с други райони

Покажи

Период

и 2 месеца

* Средните цени са определени чрез медианна стойност