Обяви За нас Контакти
Продава КЪЩА
град Благоевград, Еленово 2
275 000 €
537 853.25 лв.

(1 127 €, 2 204.22 лв./m2)
Не се начислява ДДС
История на цената
Коригирана в 10:52 на 13 февруари, 2026 год.
Обявата е посетена 4092 пъти.
Площ:
244 m2
Двор:
500 m2
Строителство:
Тухла,

Описание на имота:


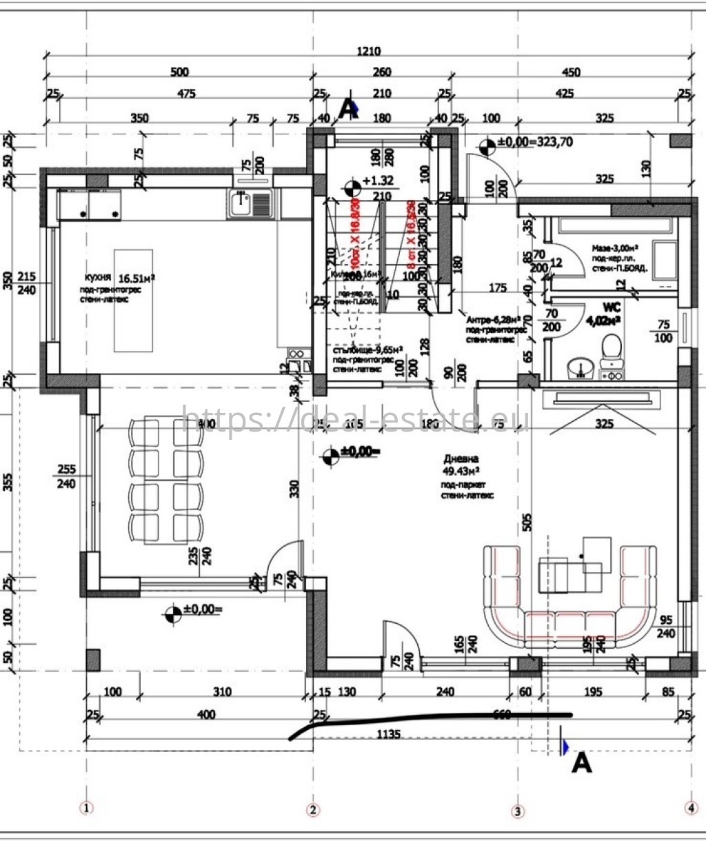
Новострояща се двуетажна еднофамилна къща за продажба в с. Еленово. Къщата е самостоятелна и е проектирана с внимание към най-малкият детайл за да се осигури на бъдещите собственици комфорт, удобство и енергийна ефективност. В изграждането и са заложени висококачествени строителни материали и техники. Разполага с отлично местоположение на тихо и спокойно място с лесен достъп. Къщата е с РЗП площ 244 кв.м., разположена в парцел с площ 500 кв.м. Разпределението на предлаганият имот е следното:
* първи етаж с площ101 кв.м. - е разположена просторна дневна с кухня в едно общо помещение с достъп към вътрешния двор, баня с тоалетна и килер. С вътрешно стълбище се стига до втория етаж.
* втори етаж с площ 143 кв.м. - коридор, три самостоятелни спални, дрешник, две бани с тоалетна, перално помещение и три тераси.
Степен на завършеност с изградена външна топлоизолация EPS ( експандиран полистирол стиропор) 10 см., вътрешна топлоизолация от гипсокартон с вата 10см, под замазка, ВиК до тапа, ел. инсталация окабелена с монтирани табла, монтирана дограма е с троен стъклопакет, монтирана входна врата. Платени партиди ЧЕЗ и ВиК, включени в цената. Обява под Реф. 114.
Особености
Тухла
В строеж
За контакт:
0877116911
Брокер:
Тодор Тодоров
0877116911
Офис: гр. Благоевград, ул. Васил Мечкуевски 20
Още оферти от брокера: Продава | Дава под наем | Купува | Наема
Агенция:
ДИЪЛ ЕСТЕЙТ
00359877116911
ДИЪЛ ЕСТЕЙТ logo
В imot.bg от 2024 г.
deal-estate.imot.bg
Адрес:
област Благоевград, гр. Благоевград, гр, Благоевград, ул. Васил Мечкуевски 20
http://deal-estate.eu
ИЗПРАТИ ЗАПИТВАНЕ
ИЗПРАТИ ЗАПИТВАНЕТО

Продава КЪЩА
град Благоевград, Еленово 2
Обява: 1j171802175319627

275 000 €
537 853.25 лв.
История на цената
(1 127 €, 2 204.22 лв./m2)

Не се начислява ДДС
ЗАПАЗИ ОБЯВАТА

Местоположение: град Благоевград, Еленово 2

Допълнителни данни за имотите в района и сравнение с други райони

Покажи

Период

и 2 месеца

* Средните цени са определени чрез медианна стойност