Обяви 0 За нас Контакти
Продава ПАРЦЕЛ
град Благоевград, Освобождение
55 000 €
107 570.65 лв.

(144 €, 281.64 лв./m2)
Не се начислява ДДС
История на цената
Коригирана в 9:49 на 27 април, 2026 год.
Обявата е посетена 371 пъти.
Площ:
383 m2

Описание на имота:


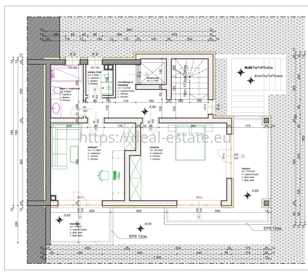
DEAL ESTATE предлага за продажба парцел с площ 383кв.м., разположен в предпочитания и добре развит квартал Освобождение, гр. Благоевград.
За имота има одобрен архитектурен проект и издадено разрешение за строеж на модерна еднофамилна къща, което позволява незабавно стартиране на строителството без допълнителни административни процедури.
Разпределение на проектираната сграда:
На Кота 0.00 (ниво улица) - двоен гараж - 66 кв.м. , стълбищна клетка и асансьор;
На кота -2.80 - три спални, баня с тоалетна, килер, тераса, стълбищна клетка и асансьор;
На кота -5.80 две спални, баня с тоалетна, килер, две тераси, стълбищна клетка и асансьор;
На кота -8.40: просторна дневна с кухня, баня с тоалетна, панорамна тераса- 28 кв.м., стълбищна клетка и асансьор;
Двор:
Дворът е около 280 кв.м и е предвиден за терасиране на две равни нива по около 140 кв.м, подходящи за:
- озеленяване;
- барбекю зона;
- зона за отдих;
Предимства на имота:
- спокойна жилищна среда само на минути от центъра
- панорамна гледка;
- издадено разрешение за строеж - може да започнете строителство веднага;
- модерен архитектурен проект, включен в цената;
- Нова улица и изградена инфраструктура
Имотът е изключително подходящ за семейства, търсещи собствен дом с лично пространство. Обява 1382.
Особености
За жил.строителство
За контакт:
0877116911
Агенция:
ДИЪЛ ЕСТЕЙТ
00359877116911
ДИЪЛ ЕСТЕЙТ logo
В imot.bg от 2024 г.
deal-estate.imot.bg
Адрес:
област Благоевград, гр. Благоевград, гр, Благоевград, ул. Васил Мечкуевски 20
http://deal-estate.eu
ИЗПРАТИ ЗАПИТВАНЕ
ИЗПРАТИ ЗАПИТВАНЕТО

Продава ПАРЦЕЛ
град Благоевград, Освобождение
Обява: 1r177427492982158

55 000 €
107 570.65 лв.
История на цената
(144 €, 281.64 лв./m2)

Не се начислява ДДС
ЗАПАЗИ ОБЯВАТА

Местоположение: град Благоевград, Освобождение

Допълнителни данни за имотите в района и сравнение с други райони

Покажи

Период

и 5 месеца

* Средните цени са определени чрез медианна стойност